St Margarets Street, Rochester, Kent ME1 1TU

For Sale £925,000 Freehold

8 3 4

Greyfox are thrilled to offer to the market for the first time in over 30 years this magnificent grade II listed, 8 bedroom semi detached residence in the heart of Rochester. Brimming with history, you can't help but fall in love with this unique property. Built in 1701, this property was originally an annexe for next door but over the years the home has taken many different forms. 

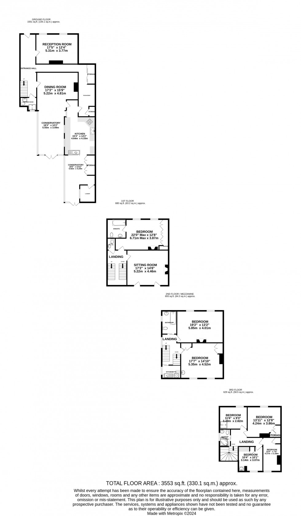
Upon entering, you are greeted with a grand entrance way and to the right you will find the large front room. Continuing to the rear, you will find a downstairs bathroom, large separate dining and conservatory area, the kitchen, utility room and second conservatory. 

Hidden away in the kitchen, you will find a secret passage way which goes behind the walls. Continuing down the passage way, you will find the stairs to the basement. This is where the boiler is located. Many years ago the basement led to tunnels underground which went down to the river. This is where smugglers would bring goods up through the house. 

Heading into the garden, you will find yourself in a secluded paradise with beautiful trees and plants. Towards the rear of the garden, you have magnificent views over the river Medway. 

Leading upstairs you will find 8 bedrooms, all of which are doubles. There is also a secondary kitchen and 2 family bathrooms, one of which has fantastic views over the Castle. 

If you are looking for a large home, bursting with history, character and in an excellent location for shops, schools and transport, look no further.  

Material Information

Material A

  • Tenure: Freehold
  • Council Tax Band: G

Material B

  • Water Supply: Ask Agent
  • Electricity Supply: Ask Agent
  • Sewerage: Ask Agent
  • Heating: Ask Agent
  • Gas: Ask Agent
  • Garages: Ask Agent
  • Gardens: 1
  • Internet: Ask Agent
  • Mobile: Ask Agent
  • Parking: Ask Agent


Material C

  • Building Safety: Ask Agent
  • Restrictive Covenant: Ask Agent
  • Other Restrictions: Ask Agent
  • Last Flooding: Ask Agent
  • Source of Flooding: Ask Agent
  • Flood Defences: Ask Agent
  • Planning Permission/Development:Ask Agent
  • Accessibility: Other - Ask Agent
  • Mining Risk (Coal): Ask Agent
  • Mining Risk (Other): Ask Agent
  • Conservation Area
  • Listed Building
  • Views of the River Medway
  • Views of Rochester Castle
  • Walking distance to Station and Amenities
  • Sought After Location
  • Substantial Property
  • Rare Property
Floorplan for St Margarets Street, Rochester, Kent ME1 1TU
EPC Graph for St Margarets Street, Rochester, Kent ME1 1TU

Get an instant online valuation

Find out how much your property is worth