Bright Road, Chatham, Kent ME4 5HH

Under Offer £220,000 Freehold

3 1 1

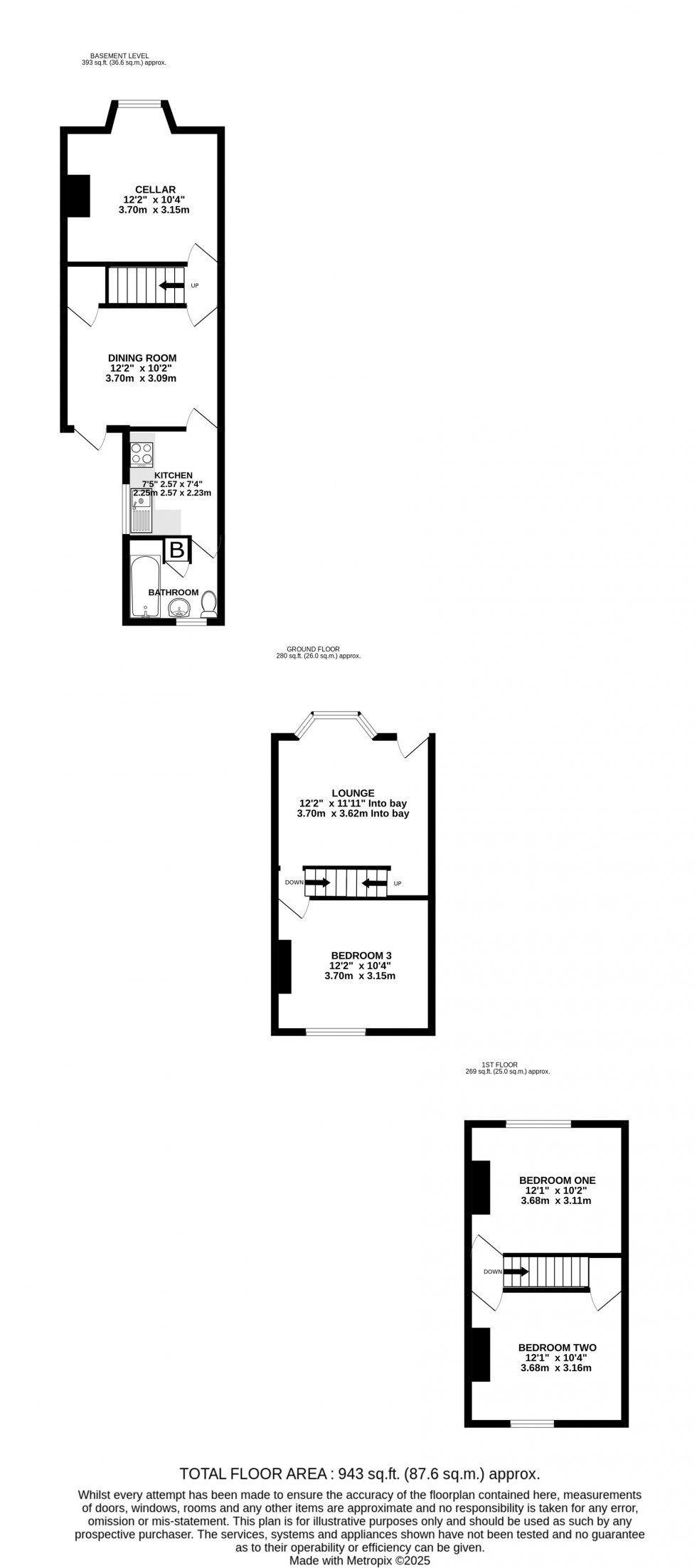
Being offered with no onward chain is this opportunity for the investor or first time buyer. On entering the first floor, you have the lounge and bedroom three. To the ground floor you are welcomed to the dining room and a new modern fitted kitchen with a range of fitted wall and base units. It also offers a cellar which is a great space for storage or could be utilised as an additional room subject to being renovated. Moving upstairs to the second floor you have again two double bedrooms and outside you have an enclosed rear garden. 

Material Information

Material A

  • Tenure: Freehold
  • Council Tax Band: B

Material B

  • Water Supply: Ask Agent
  • Electricity Supply: Ask Agent
  • Sewerage: Ask Agent
  • Heating: Ask Agent
  • Gas: Ask Agent
  • Garages: Ask Agent
  • Gardens: 1
  • Internet: Ask Agent
  • Mobile: Ask Agent
  • Parking: Ask Agent


Material C

  • Building Safety: Ask Agent
  • Restrictive Covenant: Ask Agent
  • Other Restrictions: Ask Agent
  • Last Flooding: Ask Agent
  • Source of Flooding: Ask Agent
  • Flood Defences: Ask Agent
  • Planning Permission/Development:Ask Agent
  • Accessibility: Other - Ask Agent
  • Mining Risk (Coal): Ask Agent
  • Mining Risk (Other): Ask Agent
  • No Onward Chain
  • Three Double Bedrooms
  • New Fitted Kitchen
  • Downstairs Bathroom
  • Close to local Amenities
  • Cellar
  • Separate Dining Room
  • Lounge
Floorplan for Bright Road, Chatham, Kent ME4 5HH
EPC Graph for Bright Road, Chatham, Kent ME4 5HH

Get an instant online valuation

Find out how much your property is worth