Boxley Road, Walderslade, Chatham, Kent ME5 9LJ

Under Offer £400,000 Freehold

3 1 2

Being offered with no forward chain is this detached house which now requires updating to restore and create a lovely family home in the sought after Boxley Road. Situated in a quiet location with perfect access to the local schools, shops and great access to the motorway links.

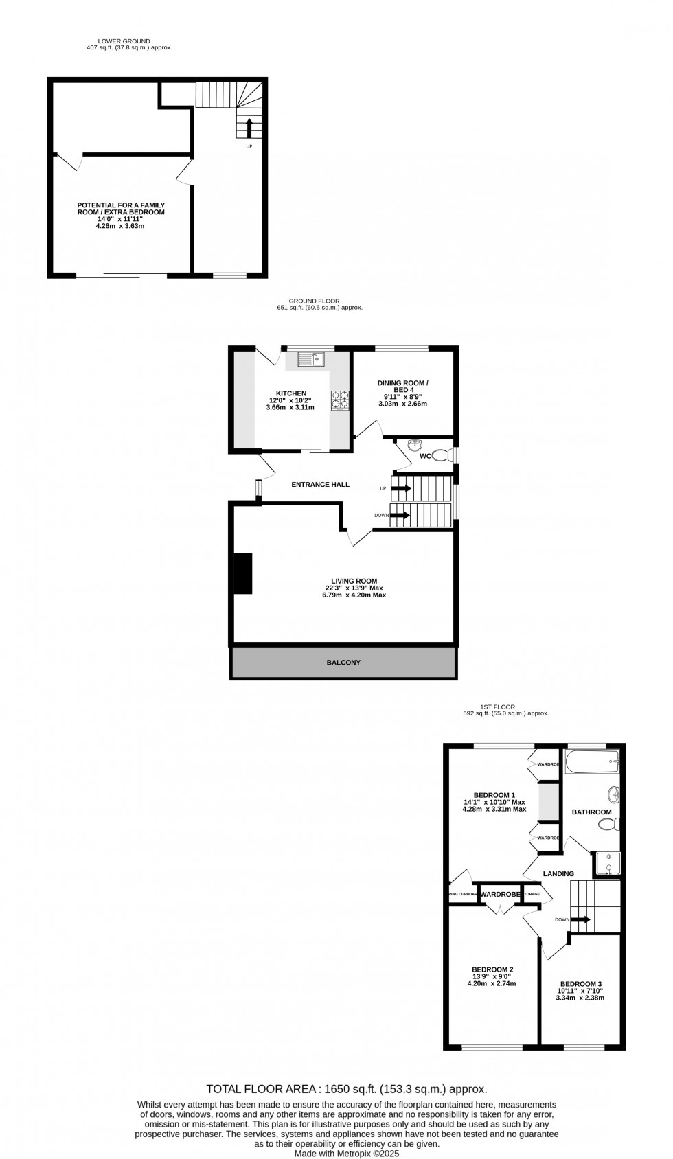
The accommodation provides a spacious entrance hallway and WC. This continues through to the kitchen which offers a range of fitted wall and base units with integrated oven & hob, a separate dining room and good size lounge with patio doors opening onto the balcony. Moving upstairs you have three good size bedrooms and a family bathroom. On the lower ground floor you have a further two rooms which would be ideal as a family room or potentially a fourth bedroom subject to relevant planning permission. Externally the property sits on a good size plot with an elevated position backing onto Woodlands, with a variety of trees and shrubs, plus gated side access leading to the driveway.

Please contact the sales team for further details. 

Agent note: The property has a Septic Tank. 

Material Information

Material A

  • Tenure: Freehold
  • Council Tax Band: E

Material B

  • Water Supply: Ask Agent
  • Electricity Supply: Ask Agent
  • Sewerage: Ask Agent
  • Heating: Ask Agent
  • Gas: Ask Agent
  • Garages: Ask Agent
  • Gardens: 1
  • Internet: Ask Agent
  • Mobile: Ask Agent
  • Parking: 1 Spaces: 2


Material C

  • Building Safety: Ask Agent
  • Restrictive Covenant: Ask Agent
  • Other Restrictions: Ask Agent
  • Last Flooding: Ask Agent
  • Source of Flooding: Ask Agent
  • Flood Defences: Ask Agent
  • Planning Permission/Development:Ask Agent
  • Accessibility: Other - Ask Agent
  • Mining Risk (Coal): Ask Agent
  • Mining Risk (Other): Ask Agent
  • No Onward Chain
  • In Need of Updating
  • Detached Three Bedroom
  • Sought After Location
  • Versatile Space
  • Great Family House
  • Great Access for Motorway Links
  • Perfect for Access to Local Shops
Floorplan for Boxley Road, Walderslade, Chatham, Kent ME5 9LJ
EPC Graph for Boxley Road, Walderslade, Chatham, Kent ME5 9LJ
Similar Properties

Get an instant online valuation

Find out how much your property is worth