Berkeley Close, Rochester, Kent ME1 2UA

Under Offer £350,000 Freehold

3 1 2

Being offered with no forward chain. If you are looking for a home to make your own then this would be ideal. It is situated in a popular location in the Rochester area and within walking distance of local schools and amenities. The property itself is an attractive semi detached house with lots of potential to extend, subject to relevant planning permissions, if required and would make a great family home. 

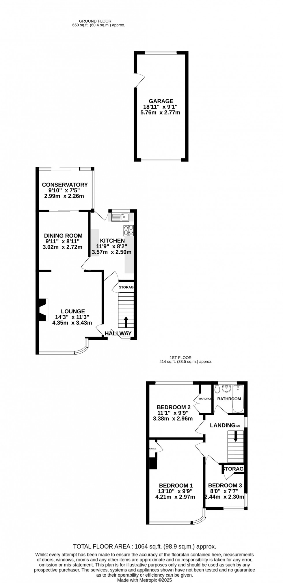
On entering there is a spacious entrance hallway. The lounge faces the front aspect overlooking the front garden, and also faces onto the rear garden. The lounge is open plan to the dining area with sliding doors to the conservatory. The kitchen offers wall and base units and a range of appliances to remain if required to include cooker and washing machine. Moving upstairs you are welcomed to the good size bedrooms and family bathroom. Outside the rear garden is exceptional and sits on a level plot which is mainly laid to lawn, with shrub borders. This is perfect for children to enjoy and play safely with handy access to the detached garage and side access to the driveway. Must be viewed.    

Material Information

Material A

  • Tenure: Freehold
  • Council Tax Band: D

Material B

  • Water Supply: Ask Agent
  • Electricity Supply: Ask Agent
  • Sewerage: Ask Agent
  • Heating: Ask Agent
  • Gas: Ask Agent
  • Garages: 1
  • Gardens: 1
  • Internet: Ask Agent
  • Mobile: Ask Agent
  • Parking: Ask Agent


Material C

  • Building Safety: Ask Agent
  • Restrictive Covenant: Ask Agent
  • Other Restrictions: Ask Agent
  • Last Flooding: Ask Agent
  • Source of Flooding: Ask Agent
  • Flood Defences: Ask Agent
  • Planning Permission/Development:Ask Agent
  • Accessibility: Other - Ask Agent
  • Mining Risk (Coal): Ask Agent
  • Mining Risk (Other): Ask Agent
  • No Forward Chain
  • Three Bedroom Semi Detached
  • Cul-De-Sac Position
  • Walking Distance to Local Schools & Shops
  • Will Be a Great Family Home
  • Driveway & Garage
  • Place Your Own Creative Stamp
  • Great Garden
Floorplan for Berkeley Close, Rochester, Kent ME1 2UA
EPC Graph for Berkeley Close, Rochester, Kent ME1 2UA
Similar Properties

Get an instant online valuation

Find out how much your property is worth