Aintree Road, Lordswood, Chatham, Kent ME5 8PY

For Sale Guide Price, £475,000 Freehold

4 1 2

Guide Price £475,000 - £495,000

We are pleased to present this immaculate four bedroom family home. The current owners have placed a lot of care maintaining this lovely home and you will not be disappointed. Rarely do properties become available on what is known as the Race Course Development which is a sought after area and also within walking distance to local schools. 

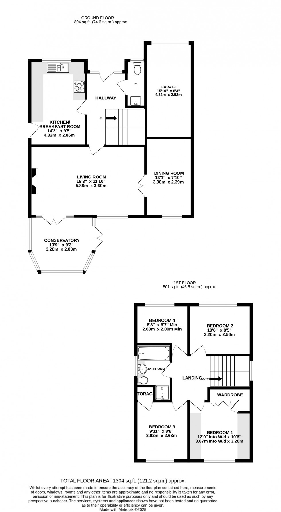
To the ground floor you are welcomed to a spacious entrance hallway with stairs to the first floor. It is very noticeable when entering this lovely home how well presented it is, which continues throughout. You have a handy WC and the modern fitted kitchen/breakfast room which offers a range of fitted wall and base units and ample worksurfaces. it also offers a host of integrated appliances to include double oven, microwave, gas hob and dishwasher. The lounge is a great space to unwind and chill with the focus point of a limestone fireplace. There is a separate dining room which is versatile as it could be offered as a guest room or study. The property also benefits from the conservatory which is a great room again to relax in all year round as it overlooks the private garden. 

Moving upstairs you are greeted with four good size bedrooms, the premium offering bespoke fitted wardrobes and a family bathroom with a modern fitted suite with separate shower cubicle. 

Externally if you are looking for a South facing garden which is low maintenance then this is ideal as mainly laid to lawn, with large patio area. This is a great space for those family gatherings and also ideal for children to be safe and secure. Gated side access leading to the front with driveway and garage with electric door. 

We do highly recommend a viewing, please call the Walderslade Sales Team for further details. 

Material Information

Material A

  • Tenure: Freehold
  • Council Tax Band: E

Material B

  • Water Supply: Main Supply
  • Electricity Supply: Main Supply
  • Sewerage: Main Supply
  • Heating: DoubleGlazing, Electric, Gas
  • Gas: Ask Agent
  • Garages: 1
  • Gardens: 1
  • Internet: ADSL
  • Mobile: Ask Agent
  • Parking: Ask Agent


Material C

  • Building Safety: Ask Agent
  • Restrictive Covenant: Ask Agent
  • Other Restrictions: Ask Agent
  • Last Flooding: Ask Agent
  • Source of Flooding: Ask Agent
  • Flood Defences: Ask Agent
  • Planning Permission/Development:Ask Agent
  • Accessibility: Other - Ask Agent
  • Mining Risk (Coal): Ask Agent
  • Mining Risk (Other): Ask Agent
  • Four Bedroom Detached
  • Modern Fitted Kitchen/Breakfast Room
  • Immaculate Condition Throughout
  • Two Reception Rooms
  • Conservatory
  • Downstairs Cloakroom
  • Sought After Location
  • Garage & Driveway
  • Enclosed Rear Garden
Floorplan for Aintree Road, Lordswood, Chatham, Kent ME5 8PY
EPC Graph for Aintree Road, Lordswood, Chatham, Kent ME5 8PY
Similar Properties

Get an instant online valuation

Find out how much your property is worth