Cranbrook Close, Twydall, Gillingham, Kent ME8 6RS

For Sale Guide Price, £280,000 Freehold

3 1 1

Guide Price £280,000 - £300,000. Chain Free and nestled in a quiet cul-de-sac within sought-after Twydall, this three-bedroom mid-terrace family home in Cranbrook Close offers space, comfort, and fantastic potential.

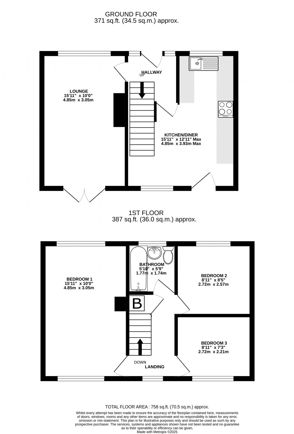
Step inside to find a generous lounge with French doors opening onto a sunny, south-westerly facing garden, perfect for family living and entertaining. The spacious kitchen/diner provides an ideal hub for mealtimes and gatherings, while the upstairs family bathroom serves two double bedrooms and a single bedroom, currently used as a home office. The main bedroom is a larger-than-average double boasting dual-aspect windows, creating a bright and airy retreat. Outside, the expansive garden offers scope for further development (STPP), giving you the opportunity to extend or enhance as you wish. The property also benefits from a modern combi boiler fitted in 2023, ensuring efficient heating and peace of mind. Situated close to local shops, amenities, and a great selection of schools, this home combines convenience with community living. With abundant on-street parking and no restrictions, it’s perfect for growing families or commuters alike.

Homes in this area are always in high demand, so don’t miss out! Call the Greyfox Sales Team in Rainham today to arrange your viewing today.

Material Information

Material A

  • Tenure: Freehold
  • Council Tax Band: B

Material B

  • Water Supply: Main Supply
  • Electricity Supply: Main Supply
  • Sewerage: Main Supply
  • Heating: GasCentral
  • Gas: Ask Agent
  • Garages: Ask Agent
  • Gardens: 2
  • Internet: Ask Agent
  • Mobile: Ask Agent
  • Parking: Ask Agent


Material C

  • Building Safety: Ask Agent
  • Restrictive Covenant: Ask Agent
  • Other Restrictions: Ask Agent
  • Last Flooding: Ask Agent
  • Source of Flooding: Ask Agent
  • Flood Defences: Ask Agent
  • Planning Permission/Development:Ask Agent
  • Accessibility: Other - Ask Agent
  • Mining Risk (Coal): Ask Agent
  • Mining Risk (Other): Ask Agent
  • Chain Free
  • Three Separate Bedrooms
  • Popular Twydall Location
  • Spacious Kitchen / Diner
  • South West Facing Garden measuring approx. 50 x 23ft
  • Generous Lounge With French Doors Into The Garden
  • Scope For Further Development (STPP)
  • Close To Shops, Public Transport, Schools & Local Amenities
Floorplan for Cranbrook Close, Twydall, Gillingham, Kent ME8 6RS
EPC Graph for Cranbrook Close, Twydall, Gillingham, Kent ME8 6RS
Similar Properties

Get an instant online valuation

Find out how much your property is worth