Cambridge Road, Wigmore, Gillingham, Kent ME8 0JE

Under Offer Guide Price, £425,000 Freehold

3 1 1

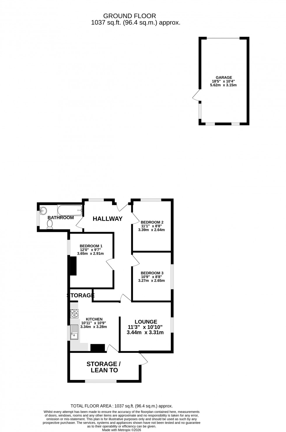
Guide Price £425,000 - £450,000- A fantastic opportunity to acquire this spacious detached bungalow, set on a generous plot in the highly sought-after area of Wigmore. Ideally positioned close to local amenities, convenient bus routes and well-regarded schools, this property offers excellent potential for buyers looking to create their ideal home. Internally, the accommodation begins with a large and welcoming entrance hall, providing access to the bathroom and the smallest bedroom, which is still a comfortable double. There are two further well-proportioned double bedrooms, with the hallway continuing through to the main living areas. The sitting room offers a pleasant space to relax, while the kitchen/diner provides ample room for family dining. To the rear, a small extension houses a useful utility room and gives access to the rear garden. Externally, the property sits well back from the road on a substantial plot, benefitting from a full wrap-around garden with generous space to both the front and rear. The front offers a driveway with parking for approximately two vehicles, with scope to extend if required, along with a detached single garage. While the property is in need of renovation, it presents an excellent opportunity to add value and tailor the home to your own taste. Early viewing is highly recommended to appreciate the potential on offer. Contact the Greyfox Rainham sales team today to arrange your viewing before this opportunity is snapped up. 

Material Information

Material A

  • Tenure: Freehold
  • Council Tax Band: E

Material B

  • Water Supply: Main Supply
  • Electricity Supply: Main Supply
  • Sewerage: Main Supply
  • Heating: Central, DoubleGlazing, Gas, GasCentral
  • Gas: Ask Agent
  • Garages: 1
  • Gardens: 1
  • Internet: ADSL
  • Mobile: Ask Agent
  • Parking: 1 Spaces: 1


Material C

  • Building Safety: Ask Agent
  • Restrictive Covenant: Ask Agent
  • Other Restrictions: Ask Agent
  • Last Flooding: Ask Agent
  • Source of Flooding: Ask Agent
  • Flood Defences: Ask Agent
  • Planning Permission/Development:Ask Agent
  • Accessibility: Other - Ask Agent
  • Mining Risk (Coal): Ask Agent
  • Mining Risk (Other): Ask Agent
  • Large Detached Bungalow
  • Three Double Bedrooms
  • Sought-After Wigmore Location
  • Large ‘Set-Back’ Plot
  • Garage & Driveway
  • Huge Scope & Potential
  • Kitchen/Diner & Separate Sitting Room
  • Chain Free!
Floorplan for Cambridge Road, Wigmore, Gillingham, Kent ME8 0JE
EPC Graph for Cambridge Road, Wigmore, Gillingham, Kent ME8 0JE
Similar Properties

Get an instant online valuation

Find out how much your property is worth