Hamilton Road, Gillingham, Kent ME7 1QL

For Sale Fixed Price, £215,000 Freehold

2 1 1

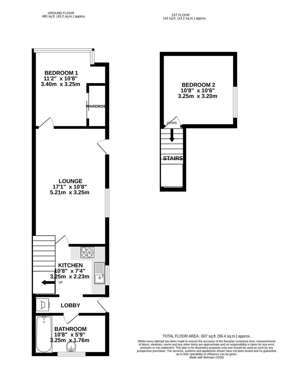
A well-presented two-bedroom semi-detached chalet bungalow situated in a popular Gillingham location, ideally positioned within walking distance of Gillingham mainline train stations, the town centre, and a wide range of local amenities. The property also benefits from pleasant views overlooking a nearby park. The ground floor offers a generously sized lounge/dining room, a generous double bedroom with built-in wardrobes, a well-appointed fitted kitchen, and a spacious family bathroom. To the first floor is a further double bedroom, providing flexible accommodation. Externally, the rear garden is a great size and designed for low maintenance, making it ideal for entertaining. Side access leads through to the front garden, completing this attractive home.

Material Information

Material A

  • Tenure: Freehold
  • Council Tax Band: B

Material B

  • Water Supply: Main Supply
  • Electricity Supply: Main Supply
  • Sewerage: Main Supply
  • Heating: GasCentral
  • Gas: Ask Agent
  • Garages: Ask Agent
  • Gardens: 2
  • Internet: ADSL
  • Mobile: Ask Agent
  • Parking: Ask Agent


Material C

  • Building Safety: Ask Agent
  • Restrictive Covenant: Ask Agent
  • Other Restrictions: Ask Agent
  • Last Flooding: Ask Agent
  • Source of Flooding: Ask Agent
  • Flood Defences: Ask Agent
  • Planning Permission/Development:Ask Agent
  • Accessibility: Other - Ask Agent
  • Mining Risk (Coal): Ask Agent
  • Mining Risk (Other): Ask Agent
  • Semi-Detached Chalet Bungalow
  • Fantastic Outlook Overlooking A Park
  • Perfect First Time Buy Or Potential Investment Opportunity
  • Two Generous Double Bedrooms
  • Spacious Separate Family Bathroom
  • Plenty Of Amenities Nearby
  • 0.5 Miles To Gillingham Train Station
  • Low Maintenance Rear Garden With Outbuilding Measuring Approx 32ft x 16ft
Floorplan for Hamilton Road, Gillingham, Kent ME7 1QL
EPC Graph for Hamilton Road, Gillingham, Kent ME7 1QL
Similar Property

Get an instant online valuation

Find out how much your property is worth