Duncan Road, Gillingham, Kent ME7 4LA

Instruction to Let £2,500 PCM

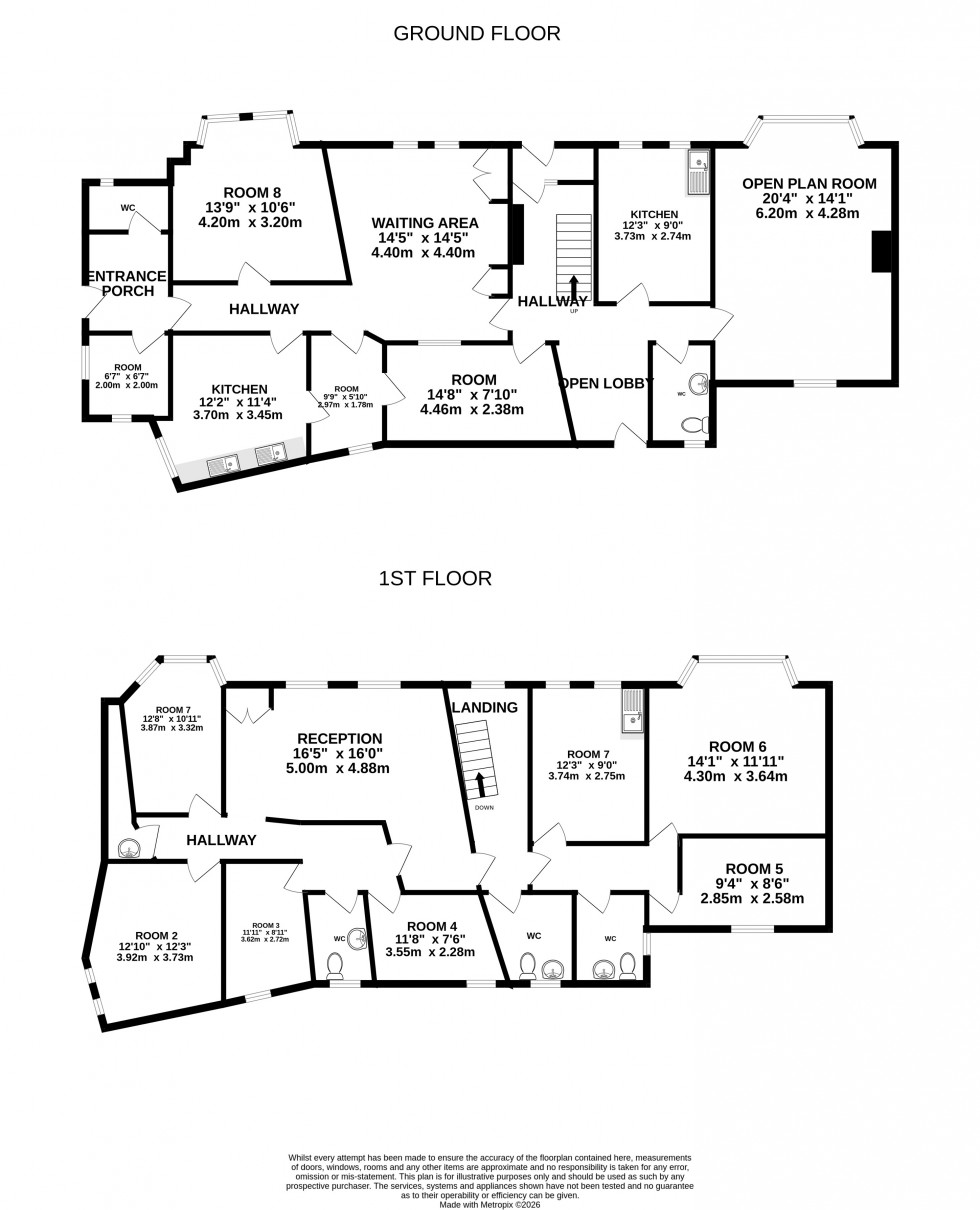
We are pleased to offer this prominent corner building in the heart of Gillingham to rent and would suit various office, medical or health users (subject to any necessary planning consents) Located on the corner of Duncan Road and Gillingham Road within walking distance to the Railway Station and Town Centre and opposite Gillingham Bus Station makes this property situated in a very central position. Previously used as therapy rooms, a dentists and a doctors surgery, the ground and first floor are made up of various offices/rooms with kitchen and WCs on each floor. The second floor is currently stripped out. This property benefits from parking spaces to the front with a courtyard that could provide further parking spaces for staff if needed.

Accommodation:

Total Approximate Area: 2500 sq.ft.

Lease: A new lease on terms to be agreed.

Rent: £30,000 per annum exclusive of rates, insurance and service charge.

Deposit: 3 months rent deposit will be required.

Rates: Any interested party should check with Medway Council Rates department in respect of the rates payable.

Legal Costs: The ingoing tenant to be responsible for their own legal costs.

Material Information

Material A

  • Tenure: Ask Agent
  • Ground Rent: Ask Agent
  • Ground Rent % Increase: Ask Agent
  • Ground Rent Review Period: Ask Agent
  • Annual Service Charge: Ask Agent
  • Remaining Lease: Ask Agent
  • Shared Ownership: Ask Agent
  • Shared Ownership Percentage: Ask Agent
  • Shared Ownership Rent: Ask Agent
  • Shared Ownership Rent Frequency: Ask Agent
  • Council Tax Band: Ask Agent
  • Security Deposit: Ask Agent

Material B

  • Water Supply: Ask Agent
  • Electricity Supply: Ask Agent
  • Sewerage: Ask Agent
  • Heating: Ask Agent
  • Gas: Ask Agent
  • Garages: Ask Agent
  • Gardens: Ask Agent
  • Internet: Ask Agent
  • Mobile: Ask Agent
  • Parking: Ask Agent


Material C

  • Building Safety: Ask Agent
  • Restrictive Covenant: Ask Agent
  • Other Restrictions: Ask Agent
  • Last Flooding: Ask Agent
  • Source of Flooding: Ask Agent
  • Flood Defences: Ask Agent
  • Planning Permission/Development:Ask Agent
  • Accessibility: Other - Ask Agent
  • Mining Risk (Coal): Ask Agent
  • Mining Risk (Other): Ask Agent
  • Prominent Corner Building
  • Close to the Town Centre & Railway Station
  • Private Parking
  • Would suit various uses (STP)
Floorplan for Duncan Road, Gillingham, Kent ME7 4LA

Get an instant online valuation

Find out how much your property is worth