Lords Wood Lane, Lordswood, Chatham, Kent ME5 8EL

For Sale £475,000 Freehold

4 1 2

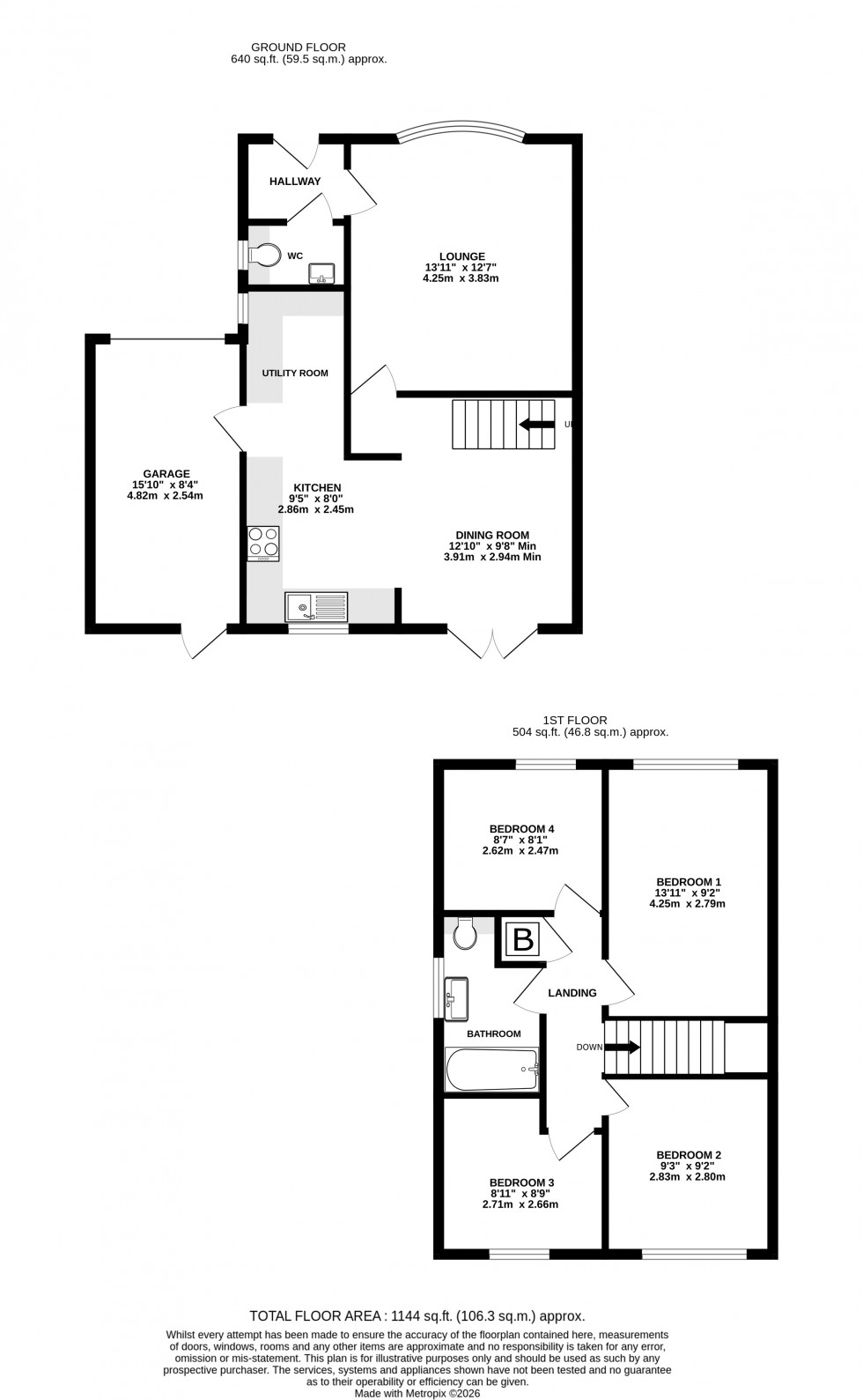
Being offered with no onward chain is this four bedroom detached home which has been presented to a high standard and enhanced with a new modern fitted kitchen and separate utility room. It includes a host of new integrated appliances, this to include electric oven/hob, microwave, dishwasher and fridge/freezer, a new washing machine and tumble dryer. It also has the benefit of new double glazing on all windows and doors throughout. 

Continuing on the ground floor, the property also offers a spacious lounge to the front which is a perfect space to unwind and entertain. Also with a dining room with French doors leading onto the enclosed rear garden. A convenient modern downstairs cloakroom adds further practicality. 

Moving upstairs there are four well proportioned bedrooms, all fitted with new carpets, alongside a new stylish family bathroom. 

Externally, the property offers a driveway leading to the garage with an electric roller door. Further parking to the front. The rear garden is offered with low maintenance in mind with decking, enclosed with fence surround and gated side access. 

Immaculately presented throughout and ready to move into, perfect for any growing family. Please call the Walderslade sales team for further details. 

Material Information

Material A

  • Tenure: Freehold
  • Council Tax Band: D

Material B

  • Water Supply: Main Supply
  • Electricity Supply: Main Supply
  • Sewerage: Main Supply
  • Heating: GasCentral
  • Gas: Ask Agent
  • Garages: 1
  • Gardens: 1
  • Internet: Ask Agent
  • Mobile: Ask Agent
  • Parking: Ask Agent


Material C

  • Building Safety: Ask Agent
  • Restrictive Covenant: Ask Agent
  • Other Restrictions: Ask Agent
  • Last Flooding: Ask Agent
  • Source of Flooding: Ask Agent
  • Flood Defences: Ask Agent
  • Planning Permission/Development:Ask Agent
  • Accessibility: Other - Ask Agent
  • Mining Risk (Coal): Ask Agent
  • Mining Risk (Other): Ask Agent
  • Part Exchange Available
  • No Onward Chain
  • Four Bedroom Detached
  • Immaculate Throughout
  • Two Receptions
  • Separate Utility and Guest Cloakroom
  • New Fitted Carpets
  • Close to local Amenities
  • New Modern Fitted Kitchen and Integrated Appliances
Floorplan for Lords Wood Lane, Lordswood, Chatham, Kent ME5 8EL
EPC Graph for Lords Wood Lane, Lordswood, Chatham, Kent ME5 8EL
Similar Properties

Get an instant online valuation

Find out how much your property is worth