Fir Tree Grove, Bredhurst, Gillingham, Kent ME7 3LB

For Sale Offers in Region of, £575,000 Freehold

4 1 2

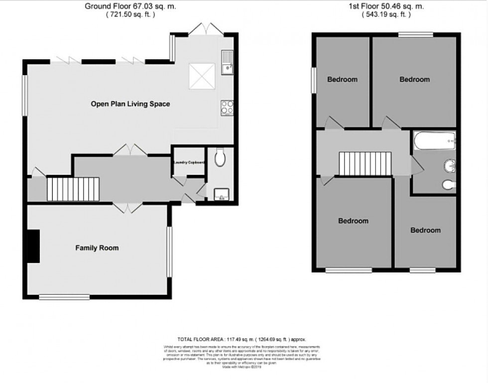
Nestled in the highly sought-after village of Bredhurst, this beautifully presented family home offers the perfect blend of rural charm, generous living space, and excellent connectivity to transport links, scenic countryside, and everyday amenities. Upon arrival, you are welcomed by a practical entrance porch—ideal for coats and shoes—leading into a spacious entrance hall. The hall features a useful laundry cupboard and a convenient ground floor W.C., adding to the home’s functionality. At the heart of the property is an exceptional open-plan living space, perfectly designed for modern family life. A spacious dining/family room—currently used as a games room—features a charming open fire, creating a cosy focal point. This flows seamlessly into a bright and airy lounge, enhanced by double-aspect windows and stylish bi-fold doors that open directly onto the impressive rear garden—ideal for both relaxing and entertaining. The contemporary fitted kitchen is thoughtfully designed with sleek units, a breakfast bar for casual dining, and a skylight that floods the space with natural light, with additional access to the garden. Upstairs, the home continues to impress with four generously sized double bedrooms, one of which benefits from fitted wardrobes. A modern and well-appointed family bathroom completes the first floor. Externally, the property boasts a substantial wrap-around garden of approximately 90ft, including the side area, with patio and lawn areas, a mature magnolia tree, seasonal wild bluebells, and miniature apple trees—perfect for outdoor dining and family activities. To the front, the garden is currently laid to lawn with potential to convert to a driveway (subject to planning). A charming pathway leads to the entrance, and the property also benefits from a garage en-bloc. Homes in this desirable village location rarely remain available for long. Contact the sales team at Greyfox Estate Agents Rainham today to arrange your viewing and avoid missing out on this fantastic opportunity.

Material Information

Material A

  • Tenure: Freehold
  • Council Tax Band: F

Material B

  • Water Supply: Ask Agent
  • Electricity Supply: Ask Agent
  • Sewerage: Ask Agent
  • Heating: Ask Agent
  • Gas: Ask Agent
  • Garages: Ask Agent
  • Gardens: Ask Agent
  • Internet: Ask Agent
  • Mobile: Ask Agent
  • Parking: Ask Agent


Material C

  • Building Safety: Ask Agent
  • Restrictive Covenant: Ask Agent
  • Other Restrictions: Ask Agent
  • Last Flooding: Ask Agent
  • Source of Flooding: Ask Agent
  • Flood Defences: Ask Agent
  • Planning Permission/Development:Ask Agent
  • Accessibility: Other - Ask Agent
  • Mining Risk (Coal): Ask Agent
  • Mining Risk (Other): Ask Agent
  • Detached Modern Family Home
  • Sought After Bredhurst Village
  • Four Generous Double Bedrooms
  • Open-Plan Living Space With Bi-Folds
  • Separate Dining/ Family Room
  • Family Bathroom & Downstairs W.C
  • Garage En-Bloc
  • Beautiful 90ft Approx. Rear Garden
Floorplan for Fir Tree Grove, Bredhurst, Gillingham, Kent ME7 3LB
EPC Graph for Fir Tree Grove, Bredhurst, Gillingham, Kent ME7 3LB
Similar Properties

Get an instant online valuation

Find out how much your property is worth