Hanway, Rainham, Gillingham, Kent ME8 6AL

For Sale Guide Price, £260,000 Freehold

2 1 1

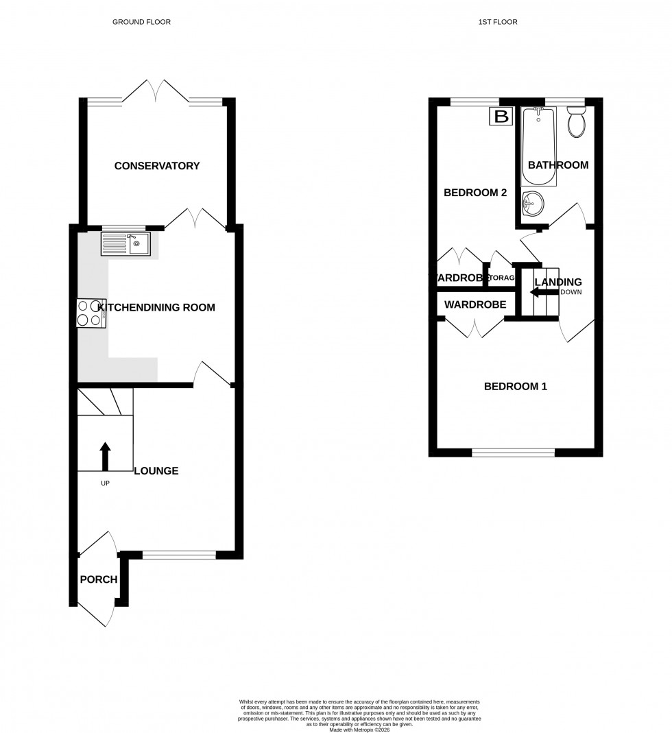
**Guide Price £260,000-£280,000** Offered with no onward chain and ideally located for local amenities and excellent transport links, this well-presented two-bedroom terraced home would make an ideal first-time purchase or a fantastic investment opportunity. The ground floor accommodation comprises a welcoming entrance porch, a spacious lounge, and a well-proportioned kitchen/diner. A bright conservatory to the rear provides additional living space and enjoys pleasant views over the garden. Upstairs, the property offers a generous main bedroom with built-in storage, a second well-sized bedroom also benefiting from built-in storage, and a family bathroom. Externally, the rear garden is an excellent size and features both patio and lawn areas, along with a useful shed and rear access leading to the allocated parking area. The front garden is mainly laid to lawn, adding to the home’s attractive kerb appeal. Properties such as this are bound to be snapped up quickly, so pick up the phone and start dialling the Greyfox Sales Team in Rainham now to arrange your viewing!

Material Information

Material A

  • Tenure: Freehold
  • Council Tax Band: B

Material B

  • Water Supply: Main Supply
  • Electricity Supply: Main Supply
  • Sewerage: Main Supply
  • Heating: GasCentral
  • Gas: Ask Agent
  • Garages: Ask Agent
  • Gardens: 2
  • Internet: Cable, FTTC, FTTP
  • Mobile: Ask Agent
  • Parking: 1 Spaces: 1


Material C

  • Building Safety: Ask Agent
  • Restrictive Covenant: Ask Agent
  • Other Restrictions: Ask Agent
  • Last Flooding: Ask Agent
  • Source of Flooding: Ask Agent
  • Flood Defences: Ask Agent
  • Planning Permission/Development:Ask Agent
  • Accessibility: Other - Ask Agent
  • Mining Risk (Coal): Ask Agent
  • Mining Risk (Other): Ask Agent
  • Two Bedroom Terraced Home
  • No Onward Chain
  • Allocated Parking
  • Fantastic Conservatory
  • Spacious Kitchen/Dining Room & Separate Lounge
  • Charming Cul-De-Sac Location With Many Amenities Nearby
  • Great Transports Links With A2 & M2 Nearby
  • Great Sized Rear Garden Measuring Approx 41ft x 14ft
Floorplan for Hanway, Rainham, Gillingham, Kent ME8 6AL
EPC Graph for Hanway, Rainham, Gillingham, Kent ME8 6AL
Similar Properties

Get an instant online valuation

Find out how much your property is worth