Napier Road, Gillingham, Kent ME7 4HB

For Sale Guide Price, £325,000 Freehold

3 1 1

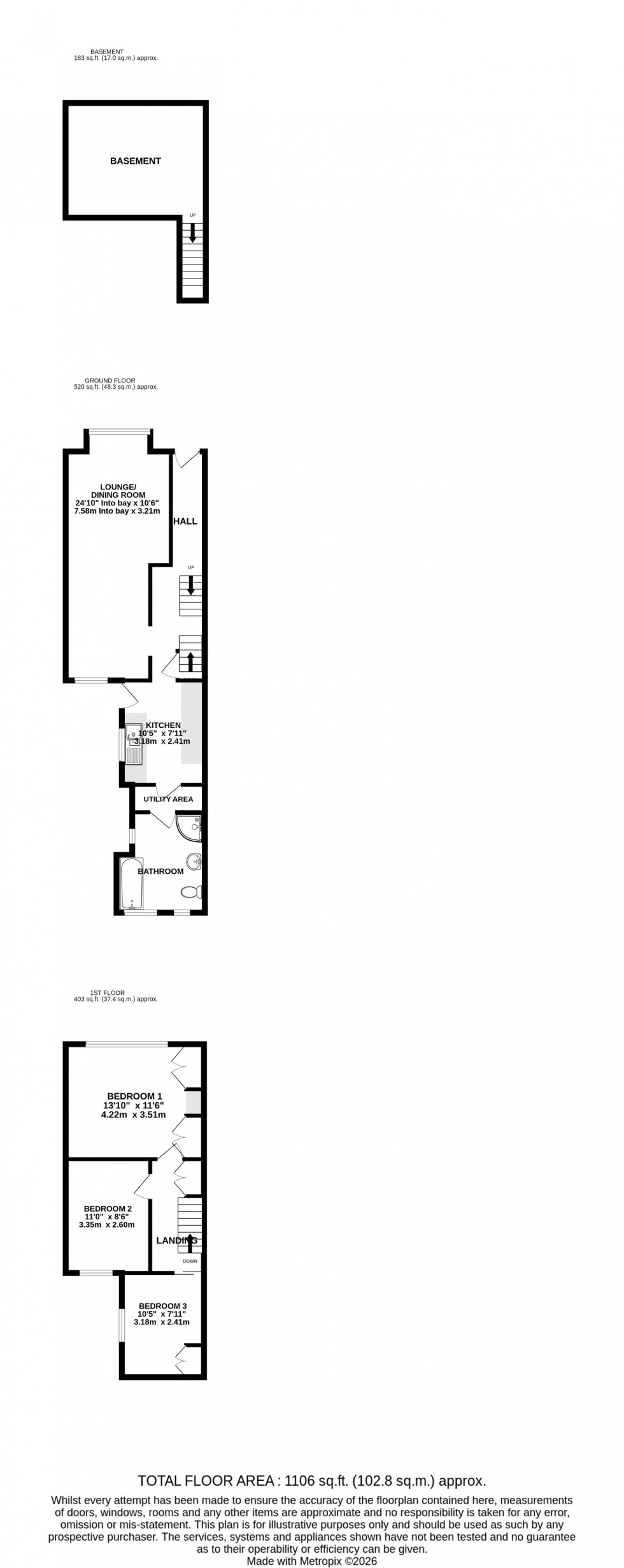
Guide Price £325,000 - £350,000 — This spacious early 1900s semi-detached home is brimming with character and period features, offering a rare opportunity to secure a property of this kind in such a convenient Gillingham location. While the property is in need of modernisation, it presents fantastic potential for buyers looking to put their own stamp on a home and add value. With the added benefit of a cellar and off-street parking for two cars — a true rarity so close to the town centre and train station — this home is perfectly suited for families and commuters alike. Internally, the property welcomes you with a generous entrance hall leading through to a bright and airy open-plan lounge and dining area, ideal for both relaxing and entertaining. The galley-style kitchen provides direct access to the garden, while the ground floor is completed by a well-appointed bathroom featuring both a bath and separate shower. Upstairs, you’ll find three well-proportioned bedrooms, two of which benefit from fitted storage, offering practical and comfortable living space. Externally, the property continues to impress with a driveway accommodating two vehicles to the front. To the rear, a low-maintenance nature garden provides a peaceful outdoor retreat. Situated in the heart of Gillingham, the property is perfectly placed to take advantage of a wide range of local amenities, well-regarded schools, and excellent transport links into London and surrounding towns and cities. Early viewing is highly recommended — contact the Greyfox Rainham sales team today to arrange your appointment before this fantastic opportunity is snapped up!

Material Information

Material A

  • Tenure: Freehold
  • Council Tax Band: C

Material B

  • Water Supply: Ask Agent
  • Electricity Supply: Ask Agent
  • Sewerage: Ask Agent
  • Heating: Ask Agent
  • Gas: Ask Agent
  • Garages: Ask Agent
  • Gardens: Ask Agent
  • Internet: Ask Agent
  • Mobile: Ask Agent
  • Parking: Ask Agent


Material C

  • Building Safety: Ask Agent
  • Restrictive Covenant: Ask Agent
  • Other Restrictions: Ask Agent
  • Last Flooding: Ask Agent
  • Source of Flooding: Ask Agent
  • Flood Defences: Ask Agent
  • Planning Permission/Development:Ask Agent
  • Accessibility: Other - Ask Agent
  • Mining Risk (Coal): Ask Agent
  • Mining Risk (Other): Ask Agent
  • Chain Free
  • Spacious Early 1900’s Semi-Detached House
  • Three Generous Bedrooms With Fitted Storage
  • Driveway For Two Cars
  • Open-Plan Lounge & Dining Room
  • Cellar Ideal For Additional Living Or Storage
  • Central Gillingham Location
  • Private Rear Garden
Floorplan for Napier Road, Gillingham, Kent ME7 4HB
EPC Graph for Napier Road, Gillingham, Kent ME7 4HB
Similar Properties

Get an instant online valuation

Find out how much your property is worth