Rudge Close, Lordswood, Chatham, Kent ME5 8UJ

For Sale Offers in Excess of, £185,000 Leasehold

1 1 1

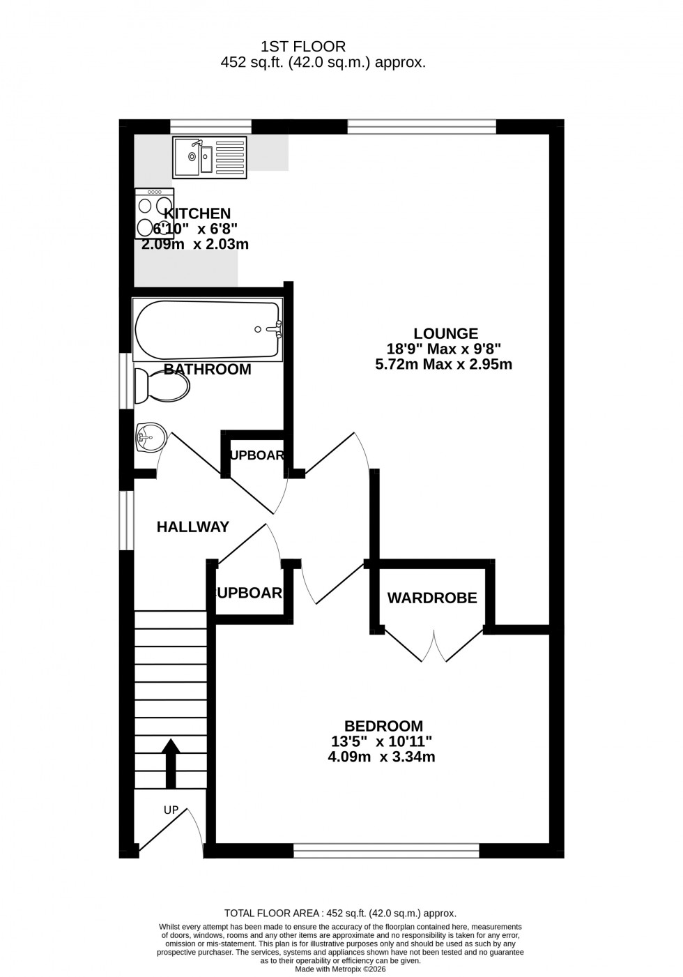
A great opportunity for the first time buyer or investor is this one bedroom first floor maisonette. Upon entering the property you have the stairs leading to the first floor where you are welcomed to a good size open plan lounge/dining area with a modern kitchen positioned to the left, offering a range of fitted wall and base units and integrated oven and hob. Continuing through the hallway you will find a generous sized bedroom with fitted wardrobes and bathroom with bath with shower over, a WC and wash hand basin. Externally the property offers a garage en-bloc with parking. This is ideal for downsizers or first time buyers. For further information please contact the Walderslade Sales Team. 

Material Information

Material A

  • Tenure: Leasehold
  • Ground Rent: Ask Agent
  • Ground Rent % Increase: Ask Agent
  • Ground Rent Review Period: Ask Agent
  • Annual Service Charge: Ask Agent
  • Remaining Lease: 88 years
  • Shared Ownership: Ask Agent
  • Shared Ownership Percentage: Ask Agent
  • Shared Ownership Rent: Ask Agent
  • Shared Ownership Rent Frequency: Ask Agent
  • Council Tax Band: A
  • Security Deposit: Ask Agent

Material B

  • Water Supply: Main Supply
  • Electricity Supply: Main Supply
  • Sewerage: Main Supply
  • Heating: GasCentral
  • Gas: Ask Agent
  • Garages: 1
  • Gardens: Ask Agent
  • Internet: Cable
  • Mobile: Ask Agent
  • Parking: 1 Spaces: 1


Material C

  • Building Safety: Ask Agent
  • Restrictive Covenant: Ask Agent
  • Other Restrictions: Ask Agent
  • Last Flooding: Ask Agent
  • Source of Flooding: Ask Agent
  • Flood Defences: Ask Agent
  • Planning Permission/Development:Ask Agent
  • Accessibility: Other - Ask Agent
  • Mining Risk (Coal): Ask Agent
  • Mining Risk (Other): Ask Agent
  • One Bedroom Maisonette
  • Garage En Bloc
  • Open Plan Living/Dining Area
  • Modern Fitted Kitchen
  • First Floor
  • Leasehold
  • Close to Local Amenities
Floorplan for Rudge Close, Lordswood, Chatham, Kent ME5 8UJ
EPC Graph for Rudge Close, Lordswood, Chatham, Kent ME5 8UJ
Similar Properties

Get an instant online valuation

Find out how much your property is worth