Forge Lane, Sittingbourne, Kent ME9 7AE

For Sale Offers Over, £290,000 Freehold

3 2 2

*Investment opportunity. Cash Buyers Only!*

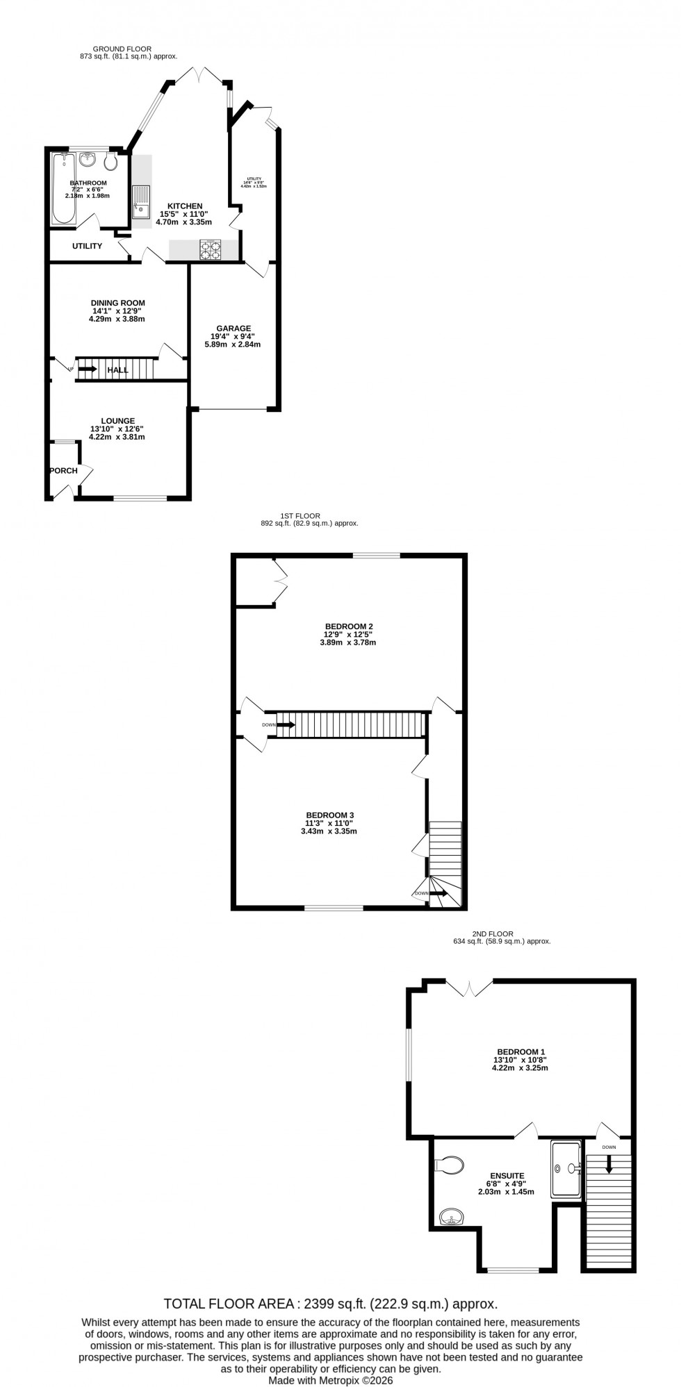
A wealth of character and situated in the popular village of Upchurch. Easy reach for Rainham & A2 road links. Deceptively spacious, this property has so much potential to create a beautiful family home laid out over 3 floors. Accommodation comprises: entrance porch leading into the lounge with sash window to the front and feature fireplace, stairs to first floor. The separate dining room has a brick built fireplace and hearth with door to the pitched roof conservatory which has been utilised as a kitchen/utility space. There is an internal door into the garage which has power, light and a tap. The boiler is also located in the garage. There is a bathroom with bath to the ground floor. Moving up to the first floor, there are two double bedrooms both with character and fireplace. The rear bedroom boasting distant views of orchard and estuary. From this bedroom is a concealed staircase to the top floor where the premier bedroom is found, a spacious room with door to an ensuite with shower cubicle and views from the velux style window. The rear garden is in natural state. To the front is a driveway and garage. Upchurch is a lovely village with community spirt, cricket club and a short stroll to local school and shops.

**Agent note: cash buyers only as kitchen/utility has been moved into the conservatory area and not suitable for mortgage purposes.**

Being Sold via Secure Sale online bidding. Terms & Conditions apply. Starting Bid £290,000

Pattinson Auction are working in Partnership with the marketing agent on this online auction sale and are referred to below as 'The Auctioneer'

The property is available to be viewed strictly by appointment only via the Marketing Agent or The Auctioneer. Bids can be made via the Marketing Agents or via The Auctioneers website.

Please be aware that any enquiry, bid or viewing of the subject property will require your details being shared between both any marketing agent and The Auctioneer in order that all matters can be dealt with effectively.

The property is being sold via a transparent online auction.

In order to submit a bid upon any property being marketed by The Auctioneer, all bidders/buyers will be required to adhere to a verification of identity process in accordance with Anti Money Laundering procedures. Bids can be submitted at any time and from anywhere.

Our verification process is in place to ensure that AML procedure are carried out in accordance with the law.

The advertised price is commonly referred to as a ‘Starting Bid’ or ‘Guide Price’, and is accompanied by a ‘Reserve Price’. The ‘Reserve Price’ is confidential to the seller and the auctioneer and will typically be within a range above or below 10% of the ‘Guide Price’ / ‘Starting Bid’

Material Information

Material A

  • Tenure: Freehold
  • Council Tax Band: D

Material B

  • Water Supply: Ask Agent
  • Electricity Supply: Ask Agent
  • Sewerage: Ask Agent
  • Heating: Ask Agent
  • Gas: Ask Agent
  • Garages: 1
  • Gardens: 1
  • Internet: Ask Agent
  • Mobile: Ask Agent
  • Parking: Ask Agent


Material C

  • Building Safety: Ask Agent
  • Restrictive Covenant: Ask Agent
  • Other Restrictions: Ask Agent
  • Last Flooding: Ask Agent
  • Source of Flooding: Ask Agent
  • Flood Defences: Ask Agent
  • Planning Permission/Development:Ask Agent
  • Accessibility: Other - Ask Agent
  • Mining Risk (Coal): Ask Agent
  • Mining Risk (Other): Ask Agent
  • Three Bedroom Semi-Detached
  • No Chain
  • Upchurch Village
  • Character Features
  • Local Amenities & Schools
  • Ensuite & Downstairs Bathroom
  • Driveway & Garage
  • Cash Buyers Only
Floorplan for Forge Lane, Sittingbourne, Kent ME9 7AE
EPC Graph for Forge Lane, Sittingbourne, Kent ME9 7AE

Get an instant online valuation

Find out how much your property is worth