Woodlands Road, Gillingham, Kent ME7 2DS

For Sale Guide Price, £325,000 Freehold

3 1 2

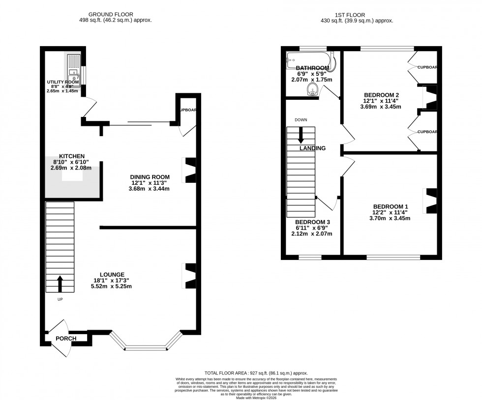
**Guide Price £325,00-£350,000** This beautiful period three-bedroom end-of-terrace home effortlessly combines character and charm with modern living, featuring high ceilings, original fireplaces, and well-proportioned accommodation throughout. The ground floor welcomes you with a storm porch leading into a spacious lounge, complete with a bay window and a stunning log burner, perfect for cosy evenings. A separate dining room showcases an attractive feature fireplace, creating an ideal space for entertaining. To the rear, the kitchen is fitted with a stylish Smeg range cooker and opens through to a practical utility room with a classic butler sink. Upstairs, the property offers two generously sized double bedrooms, both benefitting from feature fireplaces, alongside a third bedroom and a modern family bathroom. The bathroom is beautifully appointed, featuring a striking freestanding bath. Externally, the property boasts a great-sized rear garden with lots of potential, mainly laid to lawn with a patio area, ideal for outdoor dining and relaxation. There is also a front garden adding to the home’s kerb appeal. Conveniently located, the property is close to a range of local amenities, well-regarded schools, and excellent transport links, including Gillingham mainline station. The property also offers fantastic potential for further extension, with neighbouring homes having successfully extended to the rear and converted loft spaces (subject to relevant planning permissions). This will be popular so pick up the phone and start dialling the Greyfox sales team in Rainham to arrange your viewing now!

Material Information

Material A

  • Tenure: Freehold
  • Council Tax Band: C

Material B

  • Water Supply: Main Supply
  • Electricity Supply: Main Supply
  • Sewerage: Main Supply
  • Heating: Central, DoubleGlazing, Electric, Gas, GasCentral
  • Gas: Ask Agent
  • Garages: Ask Agent
  • Gardens: Ask Agent
  • Internet: Ask Agent
  • Mobile: Ask Agent
  • Parking: Ask Agent


Material C

  • Building Safety: Ask Agent
  • Restrictive Covenant: Ask Agent
  • Other Restrictions: Ask Agent
  • Last Flooding: Ask Agent
  • Source of Flooding: Ask Agent
  • Flood Defences: Ask Agent
  • Planning Permission/Development:Ask Agent
  • Accessibility: Other - Ask Agent
  • Mining Risk (Coal): Ask Agent
  • Mining Risk (Other): Ask Agent
  • Three Bedroom End Of Terrace Period Property
  • Potential To Extend To The Rear And Convert The Loft (STPP)
  • Two Receptions Rooms
  • Cosy Log Burner & Original Fireplaces
  • 0.9 Miles From Gillingham Train Station
  • Close To Local Amenities, Schools & Transport Links
  • Modern Family Bathroom With Freestanding Bath
  • Great Sized Approx 100ft Rear Garden
Floorplan for Woodlands Road, Gillingham, Kent ME7 2DS
EPC Graph for Woodlands Road, Gillingham, Kent ME7 2DS
Similar Properties

Get an instant online valuation

Find out how much your property is worth