Chestnut Avenue, Walderslade, Chatham, Kent ME5 9AJ

For Sale Offers in Excess of, £500,000 Freehold

3 1 1

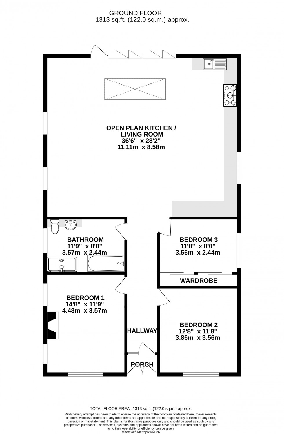
Ready to move into is this three double bedroom detached bungalow which has been extended and renovated to a high standard and will make a great family home. On entering this stunning home you are welcomed to the spacious entrance hallway leading to the three double bedrooms. There is access to a good size family bathroom with a double shower and bath, WC and a wash hand basin set in a vanity unit. 

Continuing through you will be pleasantly surprised as the open plan kitchen/living area is a great space for all the family for entertaining with friends and for chilling and relaxing. Bi-fold doors open directly onto the terrace area which is again ideal for entertaining. The modern fitted kitchen area offers a range of fitted units and Coretec worksurfaces with a central island. It offers a host of fitted appliances, this to include washing machine, tumble dryer, dishwasher, range cooker and wine cooler. 

The rear garden is perfect for those who like to chill and relax, with a large terrace area, mainly laid to lawn with shrub borders, gated side access leading to the detached garage and side driveway leading to the front.

To the front you have an in and out driveway to accommodate multiple cars. 

Chestnut Avenue is a great location and is within walking distance to local amenities and schools with bus services into Maidstone and Chatham town centre. Please call the Walderslade Sales Team for further details. 

Material Information

Material A

  • Tenure: Freehold
  • Council Tax Band: E

Material B

  • Water Supply: Main Supply
  • Electricity Supply: Main Supply
  • Sewerage: Main Supply
  • Heating: GasCentral
  • Gas: Ask Agent
  • Garages: 1
  • Gardens: 1
  • Internet: Cable
  • Mobile: Ask Agent
  • Parking: Ask Agent


Material C

  • Building Safety: Ask Agent
  • Restrictive Covenant: Ask Agent
  • Other Restrictions: Ask Agent
  • Last Flooding: Ask Agent
  • Source of Flooding: Ask Agent
  • Flood Defences: Ask Agent
  • Planning Permission/Development:Ask Agent
  • Accessibility: Other - Ask Agent
  • Mining Risk (Coal): Ask Agent
  • Mining Risk (Other): Ask Agent
  • Detached Bungalow
  • Generous In & Out Driveway
  • Spacious Open Plan Kitchen/Living Area
  • Three Double Bedrooms
  • Additional Parking with Garage
  • Beautifully Renovated Throughout
  • Sizeable Rear Garden
Floorplan for Chestnut Avenue, Walderslade, Chatham, Kent ME5 9AJ
EPC Graph for Chestnut Avenue, Walderslade, Chatham, Kent ME5 9AJ
Similar Properties

Get an instant online valuation

Find out how much your property is worth