Madden Avenue, Davis Estate, Chatham, Kent ME5 9TQ

For Sale Offers Over, £270,000 Freehold

2 1 1

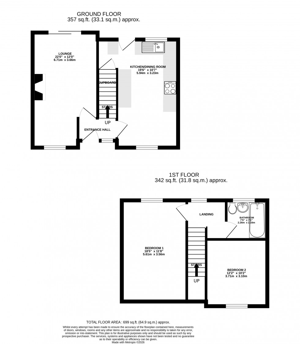
Situated on a popular development with Horsted retail park and other amenities close at hand. Beautifully maintained throughout, this end of terrace house benefits from an elevated position with view to the front. The front door leads into the entrance hall with Karndean flooring that continues through to the kitchen/dining room. The kitchen is well-appointed with many storage units, built in gas hob & oven and space for further appliances. Windows to the front aspect and rear makes this an inviting space in which to host family and friends. The lounge has sliding patio doors to the rear garden and there is a fireplace as a focal point. Upstairs are two double bedrooms and a bathroom with bath and shower attachment over. The outside space provides a thoughtfully arranged tiered garden with steps leading to the brick built garage which benefits from power and light. A wonderful house and must be viewed to fully appreciate all that is on offer. 

Material Information

Material A

  • Tenure: Freehold
  • Council Tax Band: B

Material B

  • Water Supply: Main Supply
  • Electricity Supply: Main Supply
  • Sewerage: Main Supply
  • Heating: GasCentral
  • Gas: Ask Agent
  • Garages: 1
  • Gardens: 1
  • Internet: Cable
  • Mobile: Ask Agent
  • Parking: Ask Agent


Material C

  • Building Safety: Ask Agent
  • Restrictive Covenant: Ask Agent
  • Other Restrictions: Ask Agent
  • Last Flooding: Ask Agent
  • Source of Flooding: Ask Agent
  • Flood Defences: Ask Agent
  • Planning Permission/Development:Ask Agent
  • Accessibility: Other - Ask Agent
  • Mining Risk (Coal): Ask Agent
  • Mining Risk (Other): Ask Agent
  • End of Terrace House
  • Two Double Bedrooms
  • Excellent Condition Throughout
  • Kitchen/Dining Room
  • Davis Estate
  • Garage to Rear
  • Some 'Karndean' Flooring
  • Local Retail Park & Schools
Floorplan for Madden Avenue, Davis Estate, Chatham, Kent ME5 9TQ
EPC Graph for Madden Avenue, Davis Estate, Chatham, Kent ME5 9TQ
Similar Properties

Get an instant online valuation

Find out how much your property is worth