Lamplighters Close, Hempstead, Gillingham, Kent ME7 3NZ

For Sale Guide Price, £375,000 Freehold

3 1 1

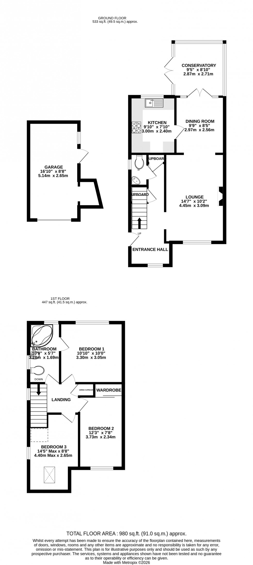
**Guide Price **£375,000-£400,000** A well-presented three-bedroom semi-detached family home, ideally situated in a prime Hempstead location. The ground floor offers a spacious entrance hall with ample storage, a convenient downstairs W/C, and a bright lounge/dining room, ideal for both relaxing and entertaining. This is complemented by a well-appointed kitchen and a conservatory overlooking the attractive rear garden. Upstairs, the property boasts three generously sized bedrooms, with built-in storage to both the second and third rooms. A stylish family bathroom serves both the landing and the main bedroom. Externally, the rear garden is a great size, featuring a patio area and lawn, perfect for outdoor enjoyment. To the front, the property benefits from a driveway, garage, and additional lawn space. Located in the ever-popular Hempstead area, the home is conveniently close to local amenities, well-regarded schools, and excellent transport links. This is expected to generate strong interest so pick up the phone and start dialling the Greyfox sales team in Rainham to arrange your viewing now!

Material Information

Material A

  • Tenure: Freehold
  • Council Tax Band: D

Material B

  • Water Supply: Main Supply
  • Electricity Supply: Main Supply
  • Sewerage: Main Supply
  • Heating: DoubleGlazing, Electric, Gas, GasCentral
  • Gas: Ask Agent
  • Garages: 1
  • Gardens: 1
  • Internet: Cable
  • Mobile: Ask Agent
  • Parking: 1 Spaces: 2


Material C

  • Building Safety: Ask Agent
  • Restrictive Covenant: Ask Agent
  • Other Restrictions: Ask Agent
  • Last Flooding: Ask Agent
  • Source of Flooding: Ask Agent
  • Flood Defences: Ask Agent
  • Planning Permission/Development:Ask Agent
  • Accessibility: Other - Ask Agent
  • Mining Risk (Coal): Ask Agent
  • Mining Risk (Other): Ask Agent
  • Three Bedroom Semi-Detached Family Home
  • Popular Hempstead Location
  • Driveway & Garage Offering Ample Parking
  • Family Bathroom & Downstairs W/C
  • Generous Rear Garden
  • Peaceful Conservatory
  • Shops, Amenities & Reputable Schools Nearby
  • Open Plan Lounge/Diner
Floorplan for Lamplighters Close, Hempstead, Gillingham, Kent ME7 3NZ
EPC Graph for Lamplighters Close, Hempstead, Gillingham, Kent ME7 3NZ
Similar Properties

Get an instant online valuation

Find out how much your property is worth