Colchester Close, Wayfield, Chatham, Kent ME5 0HQ

For Sale Offers in Excess of, £275,000 Freehold

2

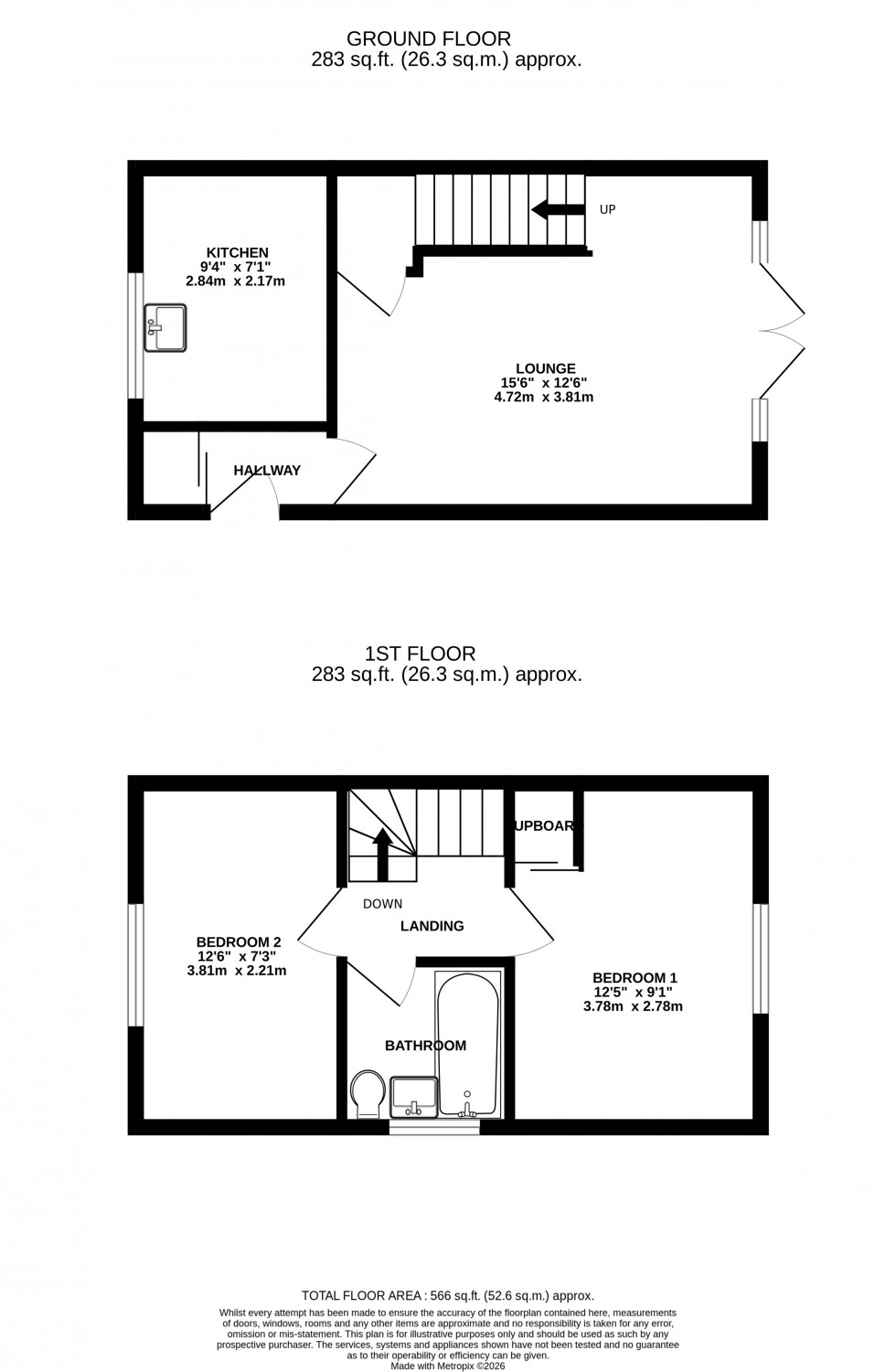
An opportunity for the first time buyer or investor is this two bedroom semi detached home. Situated in a quiet cul-de-sac position and convenient for local shops, schools and amenities. On entering there is an entrance lobby leading to the kitchen which is fitted with a range of units and worksurfaces. Continuing through you have a good size lounge/diner with stairs to the first floor. There are new double glazed French doors leading out to the good size garden. Upstairs you have two good size bedrooms and a bathroom. Externally you have a front garden and parking for two cars and to the rear you have a good size garden with patio and lawn area with side access. For further details please call the Walderslade sales team for further details. 

Agent note: these photos have been digitally enhanced. 

Material Information

Material A

  • Tenure: Freehold
  • Council Tax Band: B

Material B

  • Water Supply: Ask Agent
  • Electricity Supply: Ask Agent
  • Sewerage: Ask Agent
  • Heating: Ask Agent
  • Gas: Ask Agent
  • Garages: Ask Agent
  • Gardens: Ask Agent
  • Internet: Ask Agent
  • Mobile: Ask Agent
  • Parking: Ask Agent


Material C

  • Building Safety: Ask Agent
  • Restrictive Covenant: Ask Agent
  • Other Restrictions: Ask Agent
  • Last Flooding: Ask Agent
  • Source of Flooding: Ask Agent
  • Flood Defences: Ask Agent
  • Planning Permission/Development:Ask Agent
  • Accessibility: Other - Ask Agent
  • Mining Risk (Coal): Ask Agent
  • Mining Risk (Other): Ask Agent
  • Two Bedrooms
  • Semi Detached House
  • Driveway for Two Cars
  • Popular Location
  • Freehold
  • An Ideal First Time Buyers Home
Floorplan for Colchester Close, Wayfield, Chatham, Kent ME5 0HQ
EPC Graph for Colchester Close, Wayfield, Chatham, Kent ME5 0HQ
Similar Properties

Get an instant online valuation

Find out how much your property is worth