Hamelin Road, Darland, Gillingham, Kent ME7 3ER

Under Offer Guide Price, £525,000 Freehold

4 2 2

** Guide Price £525,000 - £550,000 **

Spacious 4-Bedroom Extended Semi-Detached Home in the Sought-After Darland Area!

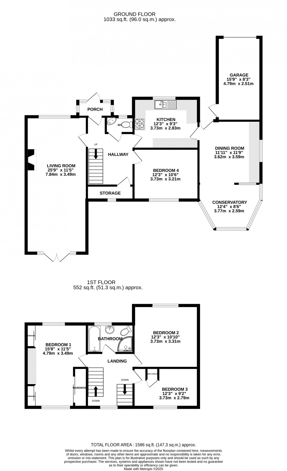
Nestled on a generous corner plot in the ever-popular location of Darland, this beautifully extended four-bedroom semi-detached house offers an abundance of living space, a wrap-around garden, and a large driveway with separate garage – ideal for families seeking comfort, style, and convenience. Step inside via the welcoming porch and entrance hall, leading into an impressive 26ft lounge featuring a fitted gas fire and French doors opening out to the garden – perfect for relaxing or entertaining. The modern fitted kitchen comes complete with integrated appliances, while the separate dining room provides additional space for family meals and includes further integrated utilities. A charming brick-built conservatory overlooks the rear garden and offers another set of French doors, seamlessly blending indoor and outdoor living. The ground floor also benefits from a double bedroom, a convenient W.C, and useful under-stair storage. Upstairs, a luxurious half-gallery landing leads to three double bedrooms, two of which feature fitted wardrobes and built-in storage. The modern family bathroom includes both a bathtub and separate shower, designed with comfort and practicality in mind. Outside, the wrap-around rear garden provides a versatile outdoor space with both patio and lawned areas, ideal for summer gatherings or relaxation. With its corner position, ample parking, and separate garage, this property offers exceptional kerb appeal and flexibility for modern family living. Early viewing is highly recommended to appreciate all this stunning home has to offer, contact the Greyfox Rainham sales team for more information.

Material Information

Material A

  • Tenure: Freehold
  • Council Tax Band: D

Material B

  • Water Supply: Main Supply
  • Electricity Supply: Main Supply
  • Sewerage: Main Supply
  • Heating: Central, Gas, GasCentral
  • Gas: Ask Agent
  • Garages: 1
  • Gardens: 1
  • Internet: Cable
  • Mobile: Ask Agent
  • Parking: 1 Spaces: 5


Material C

  • Building Safety: Ask Agent
  • Restrictive Covenant: Ask Agent
  • Other Restrictions: Ask Agent
  • Last Flooding: Ask Agent
  • Source of Flooding: Ask Agent
  • Flood Defences: Ask Agent
  • Planning Permission/Development:Ask Agent
  • Accessibility: Other - Ask Agent
  • Mining Risk (Coal): Ask Agent
  • Mining Risk (Other): Ask Agent
  • Stunning Extended Semi-Detached House
  • 4 Double Bedrooms
  • Modern Finish Throughout
  • Corner Plot with Expanded Garden
  • Large Driveway & Garage
  • Separate Lounge & Dining Rooms
  • Sought After Darland
  • Stylish Kitchen, Bathroom & W.C
Floorplan for Hamelin Road, Darland, Gillingham, Kent ME7 3ER
EPC Graph for Hamelin Road, Darland, Gillingham, Kent ME7 3ER
Similar Properties

Get an instant online valuation

Find out how much your property is worth