Tay Close, Lordswood, Kent ME5 8JJ

Under Offer £210,000 Freehold

1 1 1

Being offered with no forward chain and presents an excellent opportunity for the first time buyer or those looking to downsize. It has the benefit of a good size attached garden and off road parking space. 

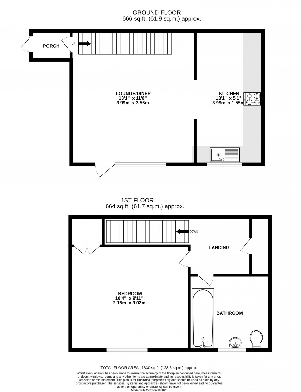
The accommodation comprises of an entrance lobby which leads into the good size lounge/diner with double glazed door leading to the enclosed rear garden. The kitchen offers a range of fitted wall and base units with integrated gas hob and electric oven. Upstairs is a good size bedroom with fitted wardrobe, a family bathroom and landing with fitted storage. Within easy reach of the M2/M20 motorway and close to local amenities. Please call the sales team for further details. 

Material Information

Material A

  • Tenure: Freehold
  • Council Tax Band: B

Material B

  • Water Supply: Main Supply
  • Electricity Supply: Main Supply
  • Sewerage: Main Supply
  • Heating: Central, GasCentral
  • Gas: Ask Agent
  • Garages: Ask Agent
  • Gardens: 1
  • Internet: Ask Agent
  • Mobile: Ask Agent
  • Parking: 1 Spaces: 1


Material C

  • Building Safety: Ask Agent
  • Restrictive Covenant: Ask Agent
  • Other Restrictions: Ask Agent
  • Last Flooding: Ask Agent
  • Source of Flooding: Ask Agent
  • Flood Defences: Ask Agent
  • Planning Permission/Development:Ask Agent
  • Accessibility: Other - Ask Agent
  • Mining Risk (Coal): Ask Agent
  • Mining Risk (Other): Ask Agent
  • No Forward Chain
  • One Bedroom House
  • Ideal for First Time Buyers or Investors
  • Allocated Parking
  • Quiet Cul-De-Sac Position
  • Lounge/Diner
  • Attached Rear Garden
Floorplan for Tay Close, Lordswood, Kent ME5 8JJ
EPC Graph for Tay Close, Lordswood, Kent ME5 8JJ
Similar Property

Get an instant online valuation

Find out how much your property is worth