The Street, Bredhurst, Gillingham, Kent ME7 3LH

Under Offer Guide Price, £550,000 Freehold

4 2 2

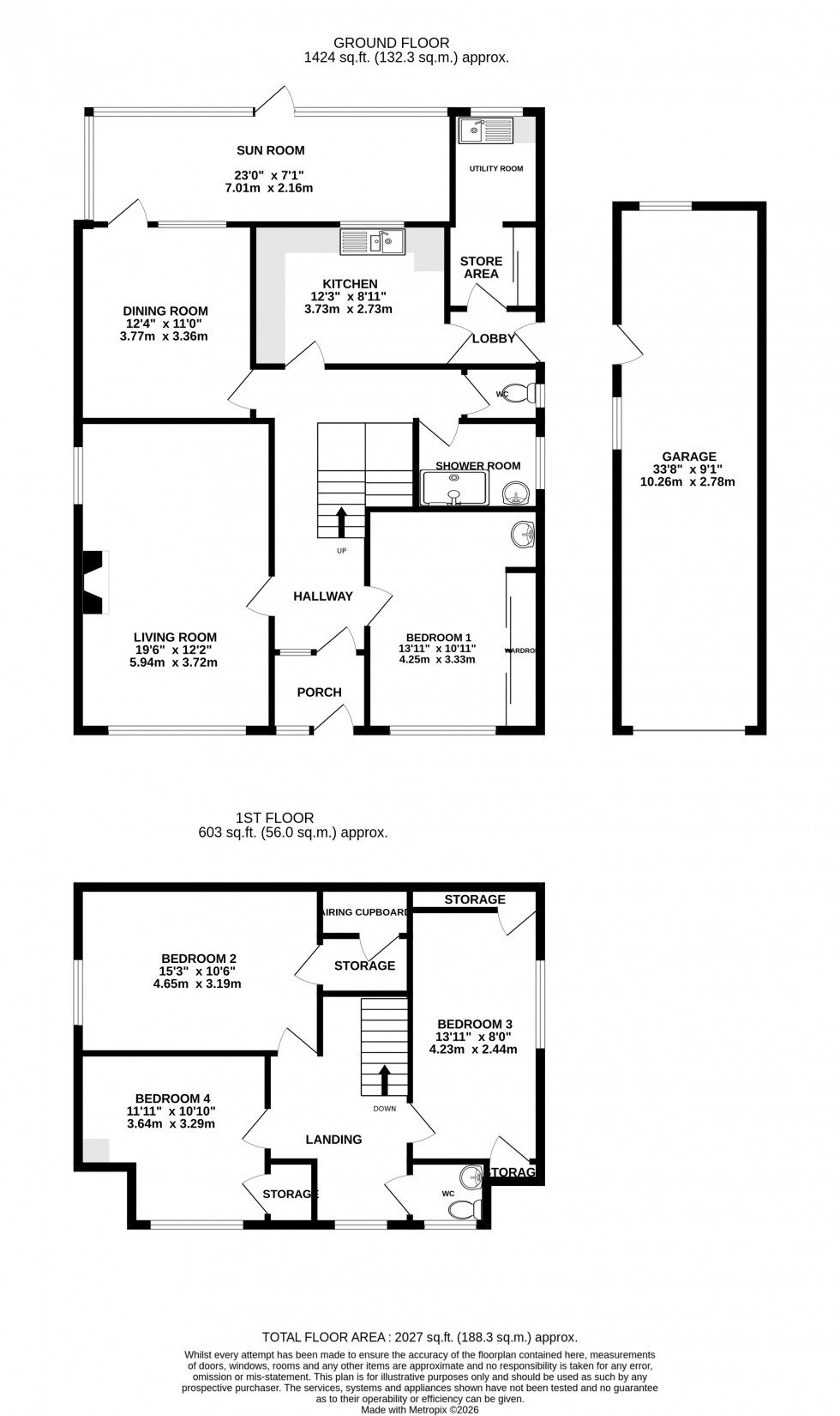
*Guide Price £550,000 - £575,000* Situated in the heart of the highly sought-after village of Bredhurst, this charming early 1960s detached chalet bungalow enjoys picturesque views from every aspect, with open fields both to the front and rear, offering a true sense of rural tranquillity. The property welcomes you via an inviting entrance porch leading into a spacious hallway. From here, you are guided into a generous lounge, a separate dining room, and a double-width conservatory that perfectly captures the surrounding countryside views. The kitchen is complemented by a separate utility room, while the ground floor further benefits from a shower room, an additional separate W.C., and a well-proportioned double bedroom to the front, complete with fitted wardrobes and a vanity-style sink. Upstairs, the landing provides access to three further bedrooms. One includes fitted storage, while another presents an excellent opportunity to create a superb principal suite, currently offering a dressing area with ample space to incorporate an en-suite and walk-in wardrobe. A further W.C. completes the first-floor accommodation. Externally, the property truly excels. Set within a plot extending approximately 200ft from front to back, the rear garden alone stretches beyond 100ft and is a gardener’s dream, featuring generous lawned areas and a patio ideal for outdoor entertaining. To the front, a driveway comfortably accommodates three to four vehicles and leads to a double-length garage. This is a rare opportunity to acquire a home in such a desirable village setting, offering both space and potential. Early viewing is highly recommended—contact the Greyfox Rainham sales team today to arrange your appointment before this exceptional property is snapped up.

Material Information

Material A

  • Tenure: Freehold
  • Council Tax Band: F

Material B

  • Water Supply: Main Supply
  • Electricity Supply: Main Supply
  • Sewerage: Main Supply
  • Heating: GasCentral
  • Gas: Ask Agent
  • Garages: 1
  • Gardens: 2
  • Internet: FTTP
  • Mobile: Ask Agent
  • Parking: 1 Spaces: 4


Material C

  • Building Safety: Ask Agent
  • Restrictive Covenant: Ask Agent
  • Other Restrictions: Ask Agent
  • Last Flooding: Ask Agent
  • Source of Flooding: Ask Agent
  • Flood Defences: Ask Agent
  • Planning Permission/Development:Ask Agent
  • Accessibility: Other - Ask Agent
  • Mining Risk (Coal): Ask Agent
  • Mining Risk (Other): Ask Agent
  • No Forward Chain
  • Spacious Detached Chalet Bungalow
  • Four Double Bedrooms with Ample Storage
  • Sought After Bredhurst Village
  • Separate Lounge, Dining Room & Conservatory
  • Shower Room & Two W.C’s
  • Driveway & Double Length Garage
  • Approx. 200ft Plot with Over 100ft Rear Garden
Floorplan for The Street, Bredhurst, Gillingham, Kent ME7 3LH
EPC Graph for The Street, Bredhurst, Gillingham, Kent ME7 3LH
Similar Properties

Get an instant online valuation

Find out how much your property is worth