Fir Tree Grove, Gillingham, Bredhurst, Kent ME7 3LB

Under Offer Guide Price, £500,000 Freehold

4 1 2

**Guide Price £500,000-£550,000**

Situated in the charming and highly sought-after village of Bredhurst, this spacious and well-presented four-bedroom detached family home offers the perfect balance of peaceful semi-rural living and everyday convenience. The village is home to an Outstanding Ofsted-rated school, a popular local pub, scenic countryside walks, and excellent transport links, making it an ideal choice for families and anyone looking to enjoy a welcoming community in a picturesque setting.

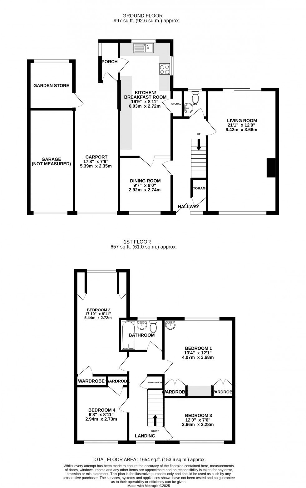
To the ground floor, the property offers a welcoming entrance hallway with built-in storage, a bright and airy kitchen/breakfast room with direct access to the dining room, ideal for family meals and entertaining. A practical porch off the kitchen opens out to the garden and carport, and there's a downstairs W/C for added convenience. The spacious lounge features a characterful fireplace and sliding doors opening onto the rear garden, creating a cosy yet open living space. Upstairs, you’ll find four generously sized bedrooms, all benefitting from built-in storage. The principal bedroom includes a handy wash basin, and the family bathroom serves all rooms comfortably.

The beautiful rear garden is a standout feature, offering a large patio area, lush lawn, mature shrubs and planting, and a garden store off the garage. To the front, there’s a well-sized driveway providing off-road parking for multiple vehicles, a lawned area with stunning established trees, a garage, and a covered carport.

This rarely available property in an exceptional location must be viewed to be fully appreciated. Early viewing is highly recommended, call the Greyfox sales team in Rainham to arrange your viewing now!

Material Information

Material A

  • Tenure: Freehold
  • Council Tax Band: F

Material B

  • Water Supply: Main Supply
  • Electricity Supply: Main Supply
  • Sewerage: Main Supply
  • Heating: GasCentral
  • Gas: Ask Agent
  • Garages: 1
  • Gardens: 2
  • Internet: ADSL
  • Mobile: Ask Agent
  • Parking: 1 Spaces: 2


Material C

  • Building Safety: Ask Agent
  • Restrictive Covenant: Ask Agent
  • Other Restrictions: Ask Agent
  • Last Flooding: Ask Agent
  • Source of Flooding: Ask Agent
  • Flood Defences: Ask Agent
  • Planning Permission/Development:Ask Agent
  • Accessibility: Other - Ask Agent
  • Mining Risk (Coal): Ask Agent
  • Mining Risk (Other): Ask Agent
  • Four Bedroom Detached Family Home
  • No Onward Chain
  • Semi Rural Location & Catchment For Bredhurst School
  • Kitchen/breakfast Room, Dining Area & Separate Lounge
  • Garage, Car Port & Driveway for Multiple Cars
  • Potential To Extend (STPP)
  • Rarely Available In The Beautiful Bredhurst Village Location
  • Stunning Rear Garden Measuring Approx 90ft & 50ft
Floorplan for Fir Tree Grove, Gillingham, Bredhurst, Kent ME7 3LB
EPC Graph for Fir Tree Grove, Gillingham, Bredhurst, Kent ME7 3LB
Similar Properties

Get an instant online valuation

Find out how much your property is worth